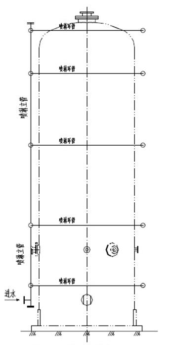
煉塔固定式水噴霧消防冷卻裝置
- ●設計依據:
GB50219 《水噴霧滅火系統設計規范》
GB50160 《石油化工企業設計防火規范》
GB50084 《自動噴水滅火系統設計規范》 ●特 性:1、本裝
產品詳細

GB50219 《水噴霧滅火系統設計規范》
GB50160 《石油化工企業設計防火規范》
GB50084 《自動噴水滅火系統設計規范》
| ●特 性:1、本裝置為固定式水噴霧消防冷卻裝置 ,不需要消防人員登上較高的煉塔平臺,是安全、經濟的消防設施。 2、當火災發生時,水噴霧消防冷卻裝置啟動 運行,在一定的水壓下,消防水從該裝置的水霧噴 頭噴出細小水霧滴,覆蓋在罐壁外表面上,水蒸發 吸熱對罐體進行防護冷卻;蒸發產生的大量水蒸汽 可以抑制火勢,減少爆炸危險性。在日常生產過程 中,也可以通過該裝置對罐體進行冷卻降溫。 |
![]() |
●型號標記:


1、煉塔水噴霧消防冷卻裝置選用ZSTW B型水霧噴頭(也可根據用戶要求選擇)
噴頭工作壓力不低于0.35Mpa,噴頭噴口距罐壁不大于700mm;
2、噴頭材質分為不銹鋼、銅合金等;
3、整套裝置采用法蘭連接,分段預制,整體熱浸鍍鋅防腐處理;
4、我公司可根據用戶所提供的罐體參數,實行一對一專門設計。
- 上一篇:水幕噴頭消防冷卻裝置
- 下一篇:臥式儲罐固定式水噴霧消防冷卻裝置


